Djurslandsportalen.dk

Tak til
 






  
05/05 2023

Fantastisk godt beliggende grunde på Møgelbjerg i Grenaa

Der er ingen tvivl om at de 59 grunde på Møgelbjerg vil blive solgt hurtigt, og selvom udstykningsarbejdet ikke er igangsat endnu, ja så er der allerede mange interesserede der lader sig skrive op som købere.


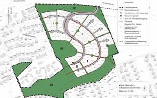
Området ligger mod nord ud mod Mellemstrupvej, hvor der bliver vejtilslutning til området. Mod øst grænser arealet op til Åstrup Idrætsforenings udendørs fodbold- og håndboldbaner. Mod syd udgør grænsen af en hovedstiforbindelse og mod vest er grænsen op til boligbebyggelsen Solskrænten.

Kommunalbestyrelsen i Norddjurs Kommune godkendte i sit sidste møde inden sommerferien lokalplan 8 for boligområdet ved Møgelbjerg. Det betyder at udstykning og byggemodning nu kan igangsættes.

Der er tale om et virkeligt attraktivt område, der skråner mod syd og øst. Der bliver tale om ret store grunde fra ca. 900 til 15oo kvm. Samtidig fastlægges der grønne fællesarealer og beplantningsbælter indenfor området.

Lokalplanen er udarbejdet af kommunens Plan- og Byggeafdelingen, der beskriver arealet som enestÃ¥ende ved sin skrÃ¥nende terrænform, der kan danne basis for opførelse af spændende, moderne boliger. Beliggenheden og vejføringerne giver mulighed for bebyggelser med udsigt over Grenaa by og med kik til Kattegat. For at sikre beliggenhed og udsigt, indeholder planen bebyggelsesgrader, sÃ¥ledes at den enkelte villa ikke mÃ¥ placeres nærmere noget skel end 5 meter. Heller ikke carporte og andre smÃ¥bygninger mÃ¥ placeres indenfor denne afstand. Herved opnÃ¥s en række naturlige udsigtskiler mellem bebyggelserne pÃ¥ min. 10 meter, og hvor en sti placeres kommer frirummet op pÃ¥ min. 15 meter. Eventuelle frugttræer i sti-bælterne skal holdes lave – under 4 meter.

Samtlige boliger må opføres i op til 2 etager og i en højde på op til 8,5 meter. Der stilles ingen begrænsninger i valg af façade- og tagmaterialer og heller ikke i valg af tagformer. Hensigten er, at der skal være mulighed for at opføre huse i tidssvarende, energibesparende materialer og konstruktioner.

Kommende beboere må derfor indstille sig på, at der kan opføres andre former for bebyggelse end traditionelle parcelhuse, f.eks. træhuse. Det er også oplagt og tilladt at påbygge en udsigtsbalkon i første sals højde, hvor bebyggelsen tager hensyn til det skrånende terræn. Alt ialt en flot plan der giver plads for en smuk bydel tæt på skoler og Grenaas Centrum, med tæt forbindelse via gode gå- og stiforbindelser.
SEC.

Kilde: Grenaa Bladet

sof


 

Tak til
 

Kort Nyt

Indsend dine egne nyheder og læserbreve til:
nyheder@djurslands.net

Vi mangler frivillige, der har lyst til at arbejde med nyheder på hele Djursland. Skriv til redaktion@djurslands.net hvis du vil give en hånd med.

Nyhedsstrøm

RSS nyhedsstrøm
Hent nyhederne fra din egen nyhedslæser eller vis dem pÃ¥ din hjemme­side.

Net Nyt
Problemer med din opkobling? - Check Netstatus her

Download programmer for sikring af din PC - her

Brug for antispam til din mailserver - antispam